Luxusní bydlení uprostřed města! 1. řada moře – vila s 1A výhledem na moře a Umag
S hrdostí představujeme zcela novou 5hvězdičkovou vilu na prodej na pláži v Umagu. Vila se nachází pár metrů...
1.250.000€
52100 Pula, Chorvatsko
Na prodej
1.350.000€









































Vila na prodej, 500 metrů od moře.
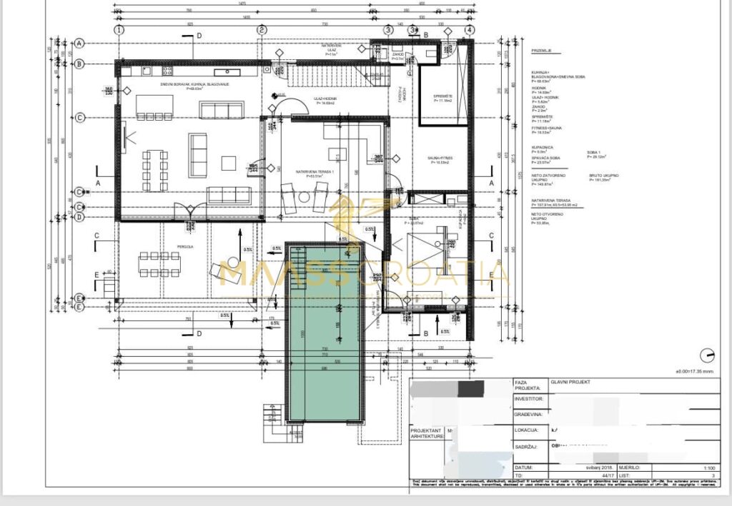
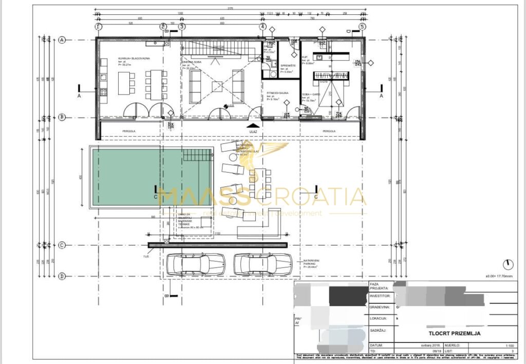
Celková plocha domu je 504,57 m2. Čistá plocha je 404,47 m2. Plocha pozemku je 1 113 m2. Vila se prezentuje kompletně zařízená.
Vila je zcela nová, byla dokončena na konci roku 2021 a vyznačuje se nezapomenutelným architektonickým výrazem, který nelze nechat bez povšimnutí. Je inspirována kancelářskou budovou Grande Arche v Paříži, známou ve světě architektury, která se vyznačuje velkým obloukem spojujícím dvě budovy. Uvnitř této istrijské vily vyniká vnitřní vstupní hala s výškou až 7,5 metru, kterou obklopuje vzdušné schodiště vedoucí do prvního patra. Zvláště atraktivní je blízkost bazénu k interiéru – je ukrytý pod horním podlažím, jen 5 metrů od obývacího pokoje a jídelny a 2 metry od kuchyně, což mu dodává zvláštní atmosféru.
Bazén má nejmodernější technologii úpravy vody a vylepšený léčebný účinek, protože chlor se získává přirozenou cestou ze soli elektrolýzou, což je mnohem zdravější než klasická úprava chlorovanou vodou, a chlor není ve vodě vůbec cítit, což lidé oceňují, protože jsou na chlor citliví. Plot je velmi atraktivní a skládá se z gabionových košů, do kterých se ručně instaluje drcený kámen. Tento kámen je navíc osvětlen LED pásky, takže večer poskytuje vynikající atmosféru. Vila má venkovní sprchu a venkovní umyvadlo. Teplou vodu ohřívají solární panely na střeše, což snižuje náklady na minimum.
Vila má alarm napojený na chytrý telefon, systém dálkové aktivace a deaktivace, kamery napojené na chytrý telefon, nezávislé nahrávací zařízení atd. Dům má plovoucí vstupní bránu s dálkovým ovládáním, vstupní dveře se systémem kódového vstupu, zavlažovací systém trávníku Napouštění bazénu z vlastní studny. Dům je celý železobetonový s velkými rozpony, bez cihel, s nejvyššími standardy proti zemětřesení. Ze všech stran je tepelně a hydroizolačně izolován. Střecha je na podzim opatřena 28 cm izolačních desek XPS a stěny 15 cm grafitového polystyrenu Rofix. Bazén je rovněž ze všech stran izolován izolačními deskami XPS. Na fasádě nejsou žádné žlaby pro odtok vody ze střechy, protože jsou skryty ve fasádě a svedeny do absorpční jímky, takže při dešťových přeháňkách nestojí na pozemku přebytečná voda, a dodatečná UV lampa vodu v bazénu maximálně sterilizuje, aby v ní nemohly přežívat bakterie a viry. Polovina bazénu je zakrytá, což ocení lidé náchylní ke zhoubným kožním onemocněním. Je snadné ji zcela uzavřít a používat bazén i v zimě. Bazén má klasické schodiště a mělké, líné přistání ve stínu. Bazén je navíc vyhříván tepelným čerpadlem plus solárními panely na střeše, což poskytuje dodatečný komfort v chladnějších dnech. Ze všech stran je tepelně izolován izolačními panely XPS, které v noci udržují vysokou teplotu. Kromě toho je bazén vybaven tepelnou dekou pro udržení teploty přes noc a pro používání bazénu v zimě.
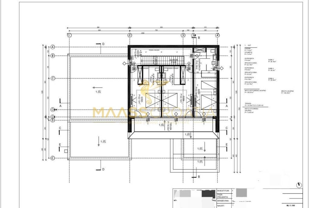
Pokoje jsou moderně zařízené s velkým množstvím světla a prosklených ploch a je z nich krásný výhled na moře a ostrovy Lošinj. Dům je bezbariérový, protože v něm nejsou žádné schody a přízemí včetně spodního pokoje je na jedné úrovni. Dům je vhodný i pro malé děti, protože rodiče je mohou vidět při koupání přímo z kuchyně nebo obývacího pokoje. Velké kryté terasy poskytují hostům dostatek stínu. Součástí kryté terasy je také velký venkovní gril na dřevo a dřevěné uhlí a venkovní letní kuchyně. Pozemek je ze všech stran oplocený, což vám zajistí klid a bezpečí. kolem domu byla provedena dodatečná drenáž, která je svedena do vlaštovčí studny. Všechna skla v domě jsou trojitá a oboustranně tvrzená s povrchovou úpravou E-Low pro udržení teploty. Hliníkové truhlářské výrobky jsou opatřeny speciální povrchovou úpravou pro lepší ochranu před solí. Všechny obklady a dlažby mají rozměry 80 × 160 cm a jsou dovezeny ze Španělska. V celém domě byl snížen strop a na chodbách bylo instalováno také nepřímé osvětlení.
Každý pokoj má vlastní velkou 55″ LCD TV + 70″ pro obývací pokoj, satelitní antény jsou v každém pokoji, velké sprchové kouty v každém pokoji atd. Vila splňuje maximálně 5 hvězdiček.
Městečko se nachází na jihovýchodě Istrijského poloostrova, pouhých 8 km od letiště a největšího města Istrie, Puly. Obec Ližnjan má 28 kilometrů pobřeží bez zástavby a s naprosto nedotčenou přírodou. Ideální pro pěší turistiku nebo cykloturistiku. Malá rybářská vesnička Ližnjan je plně propojena s turistickým městečkem Medulin, které má dlouhou písečnou pláž a milují ho především děti.





S hrdostí představujeme zcela novou 5hvězdičkovou vilu na prodej na pláži v Umagu. Vila se nachází pár metrů...
1.250.000€





V přízemí tohoto dvoupatrového domu se nachází byt o velikosti cca 80 m2, který se skládá ze 2 ložnic,...
399.000€
Moderní vila s bazénem a panoramatickým výhledem na ostrovy Brijuni
Owning a home is a keystone of wealth… both financial affluence and emotional security.
Suze Orman