Nemovitost s několika možnostmi nákupu: v klidné lokalitě obklopené zelení.
Zde je na prodej budova s několika možnostmi koupě. V současné době je možné koupit dům jako celek za cenu 1...
260.000€
Krk
22202 Primosten, Chorvatsko
Na prodej
1.600.000€




Z vily je nádherný panoramatický výhled na moře a Primošten.
V současné době je ve výstavbě a je obklopena přírodou, daleko od ruchu města.
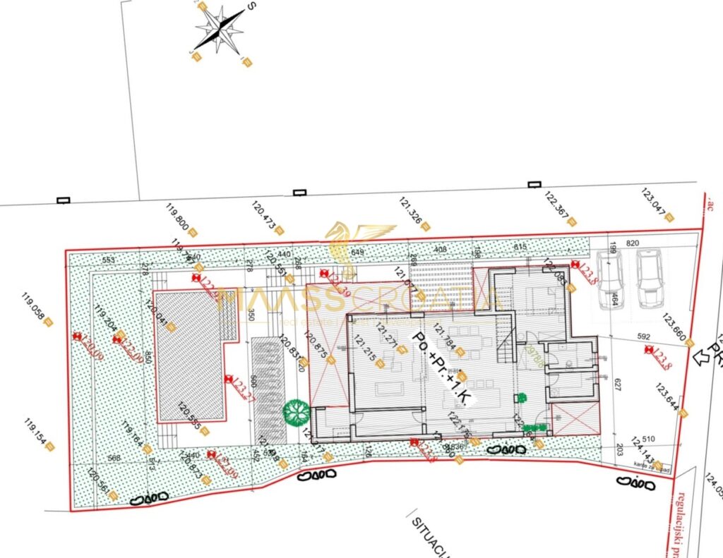
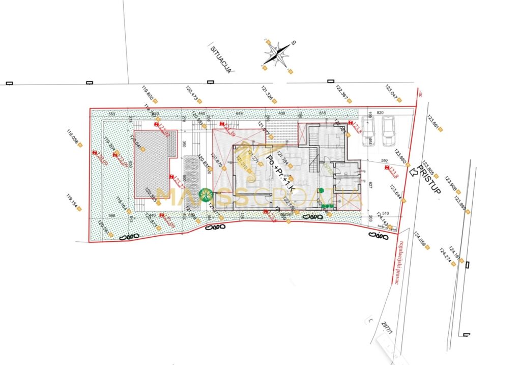
Vila se nachází na pozemku o rozloze 600 m2 a byla navržena s ohledem na moderní architekturu, čisté linie, prostorné terasy a pečlivě vybrané materiály.
Díky své třípodlažní konstrukci má vila obytnou plochu 225,21 m² a nabízí dostatek prostoru pro pohodlné bydlení.
Suterén nabízí prostorný sklad a místnost pro vybavení bazénu, zatímco přízemí a první patro jsou vyhrazeny pro každodenní život a relaxaci.
Prostorný venkovní areál zahrnuje dostatečné parkoviště pro několik vozidel a bazén o rozloze 40 m2 obklopený plochou na opalování, který vytváří ideální místo pro relaxaci a společenské setkávání na čerstvém vzduchu.
Prostorný interiér vily tvoří hlavní vstupní prostor, chodba, prádelna, jídelna, obývací pokoj, kuchyně se vstupem na terasu s letní kuchyní a ložnice s vlastní koupelnou.
V prvním patře se nacházejí tři prostorné ložnice, každá s vlastní koupelnou a šatnou.
Přestože se vila nachází v klidné oblasti, je vzdálena pouhých 1900 metrů od pláže a 2400 metrů od centra města.
Plánovaný termín nastěhování je stanoven na léto 2025.
Primošten je krásné, malé a okouzlující městečko ležící mezi Rogoznicí a Šibenikem.





Zde je na prodej budova s několika možnostmi koupě. V současné době je možné koupit dům jako celek za cenu 1...
260.000€





V přízemí tohoto dvoupatrového domu se nachází byt o velikosti cca 80 m2, který se skládá ze 2 ložnic,...
399.000€
Oblast Šibenik: 550 m od pláže: Tři rodinné domy se zahradou
Owning a home is a keystone of wealth… both financial affluence and emotional security.
Suze Orman