Moderní styl Bauhaus, ušlechtilý a minimalistický: dům na 3 podlažích s výhledem na moře a bazén
Tato krásná třípatrová, ultramoderní vila se 400 m2 obytné plochy a 700 m2 pozemku se nachází nedaleko...
2.000.000€
Pula
23251 Kolan, Mandre, Chorvatsko
Na prodej
429.000€


































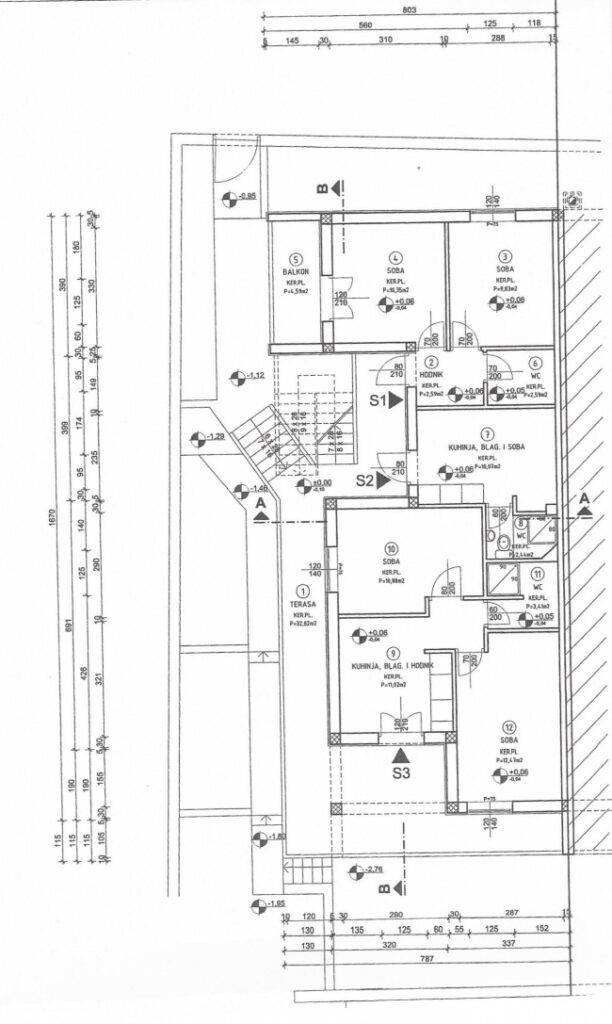
Jihozápadně orientovaný dvojdomek s devíti bytovými jednotkami a možností letního pronájmu turistům.
V každém patře jsou tři byty různých velikostí:
– Byt (S1) se skládá z obývacího pokoje s jídelnou a kuchyní, ložnice a koupelny.
– Jednopokojový byt (S2), který se skládá z obývacího pokoje/ložnice s koupelnou.
– Velký byt (S3), který se skládá z obývacího/jídelního prostoru s kuchyní, dvou ložnic a koupelny.
Všechny byty jsou samostatně přístupné z příslušných balkonů po venkovních schodech.
Střešní terasa nabízí možnost nerušeného pobytu s nádherným výhledem na moře a celou vesnici.
V přízemí domu se nachází velká garáž s dlážděnou podlahou, kterou lze využít i k jiným účelům, např. jako společenskou nebo párty místnost. Nachází se zde také sprchový kout s WC.
Ortschaft im Süden der Insel Pag.
Pag befindet sich ca. 50 km nördlich von Zadar und hat Brückenanbindung an das Festland.
Bis zum Strand sind es nur 100 m. Einkaufsmöglichkeiten finden sich in unmittelbarer Nähe.
Das Haus wird versorgt mit Fernwasser, welches über eine Solaranlage gewärmt wird. Zudem ist auch eine Wasserzisterne vorhanden.
Abwasser wird über eine Septikgrube entsorgt.
Das Objekt ist an das Stromnetz angeschlossen und verfügt über Telefon- und Sat-TV-Anschluss.
Es besteht die Möglichkeit angrenzend ein ca. 100 m² großes Grundstück zu erwerben. Zusätzliche PKW-Stellplätze könnten damit angeboten werden.
Kaufpreis für dieses Grundstück nach Vereinbarung.





Tato krásná třípatrová, ultramoderní vila se 400 m2 obytné plochy a 700 m2 pozemku se nachází nedaleko...
2.000.000€





Špičková investice v jedné z nejvyhledávanějších lokalit ve Splitu - přímo u moře v Bačvicích. Nemovitost...
2.440.000€
Nově postavená vila s bazénem a výhledem na moře
Owning a home is a keystone of wealth… both financial affluence and emotional security.
Suze Orman