Útulný prázdninový byt v krásném Medulinu s výhledem na moře
Byt ve skvělé lokalitě v Medulinu s obytnou plochou 49,23 m2. Byt se nachází ve třetím patře obytného domu a...
159.000€
Medulin
23275 Poljana / Insel Ugljan, Chorvatsko
721.000€














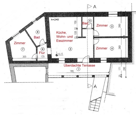
Tato nemovitost ve tvaru písmene L, která se nachází v centru ostrovní vesnice, byla v roce 2008 profesionálně zrekonstruována s velkým důrazem na detail. Rozdělená na dvě sousedící budovy, 4-5 možných bytových jednotek (cca 280 m² obytné plochy, 12 pokojů, 6 koupelen) hledá nového majitele.
Uvnitř byl jako poutavý designový prvek zakomponován přírodní kámen typický pro tento region. Výběr barev místností a vybavení (nákup nábytku je předmětem jednání) podtrhuje venkovský středomořský charakter.
Čtyři terasy (částečně zastřešené) o celkové ploše přes 100 m² vybízejí k posezení. Elektřina, telefon a voda jsou již připojeny. K dispozici je také studna. Odpadní voda se shromažďuje v septiku a plánuje se napojení na kanalizaci.
Dům je možné ihned obývat! Idylická koupací a rybářská vesnička nabízí dobrou občanskou vybavenost, která je v docházkové vzdálenosti. Moře je vzdáleno jen cca 30 metrů.
Insel Pasman/Ugljan, Zadar vorgelagert
Zwei Nutzungsmöglichkeiten bieten sich hier an: Eigennutzung oder Vermietung (VK verfügt über Stammkundschaft!!)





Byt ve skvělé lokalitě v Medulinu s obytnou plochou 49,23 m2. Byt se nachází ve třetím patře obytného domu a...
159.000€





Umístění: Bibinje Postaveno: 2022 Centrum města: 9 km Moře: 0,3 km Vzdálenost od letiště: 7 km Vnitřní...
1.400.000€
Apartmán s výhledem na celý Kvarnerský záliv na skvělém místě nedaleko Opatije! – Bazén, velký balkon
Owning a home is a keystone of wealth… both financial affluence and emotional security.
Suze Orman